Espace commerciale à louer - 2100 pi2 (Près du projet Lumicité) - Espace à louer
| Numéro de l'annonce | 9455 |
|---|---|
| ID | N/D |
| Prix | 27,00$/ pied carré |
| Pièces | 0 |
| Type | Bureaux |
| Catégorie | AAA |
| Taille du lot | 2 100,00pi2 |
|---|---|
| Année de construction | 2026 |
| Superficie | 2 100,00pi2 |
| Étages | 0 |
| Stationnement | 6 Places (1 ADA) |
| Sous-location? | Oui |
Description
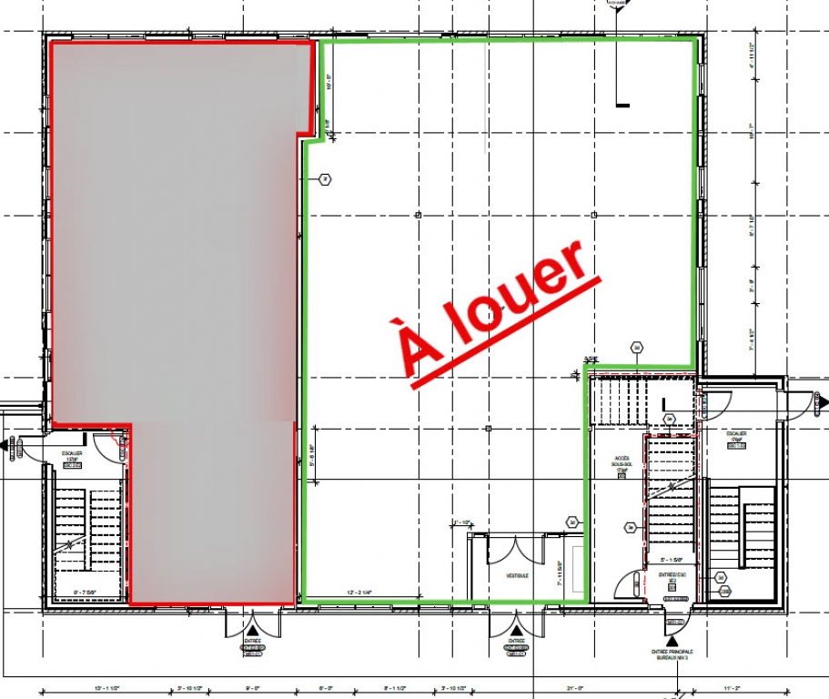
Nouvel immeuble à construire, photos à titre indicatif seulement. Local commercial ou de bureaux de 2100pc à Chambly! Cet unité vous offre la possibilité d'aménager l'intérieur à votre goût. Il est possible de subdiviser le local pour faire la location d'une part plus petite (au minimum de 1000pc). La propriété possède un stationnement commun extérieur. La date de livraison prévue est pour le mois d'août. Contactez nous pour plus d'informations.
Caractéristiques
- Air Climatisé
- Améliorations
- Cafétéria/cuisine
- Chauffage
- Disponibilité
- Electricité
- Gicleurs
- Hauteur libre (plafond)
- Stationnement
- Transport en commun
- Vue






